cad直径符号怎么打?教你一个简单操作打出特殊符号
cad直径符号怎么打?教你一个简单操作打出特殊符号
在使用CAD绘图时,每当涉及尺寸和测量就会涉及到一些特殊符号的输入,其中直径符号就是常见的一种。直径的符号通常由“Φ”表示,这个特殊符号它可以帮助我们精确地绘制图形、测量物体直径。

果你还不知道怎么快速又便捷的输入直径符号,下面小编给大家分享3个方法,教你在CAD中高效地打出直径符号。
迅捷cad编辑器
它是一款应用于图纸DWG格式文件的编辑软件,主要为DWG、DXF等文件格式图纸提供浏览、编辑功能。

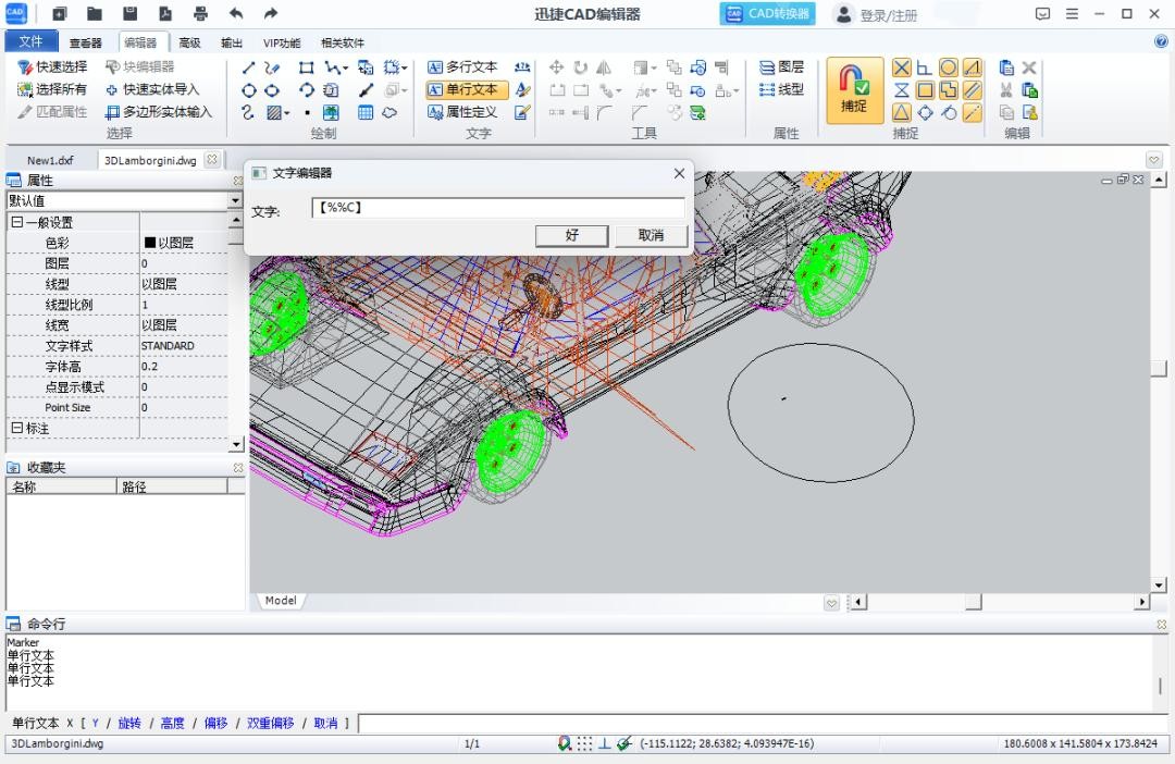
输入字符
打开CAD之后我们在菜单里找到文字选项,选择单行文本,在弹出的文字编辑器中输入【%%C】即可弹出想要的直径符号。

我们还可以使用同样的方法在文本框中,按住Alt键+数学0248或数字0216,打出直径符号。

除了以上2种方式外,我们也可以在输入法的字体库中找到直径符号,首先打开“符号大全”,再选择“希腊/拉丁语”,从中找到直径符号,选中后自动复制,再粘贴时即可成功打出直径符号。

如果需要标注多个直径符号,也可以使用复制和粘贴命令,或者使用命令行来快速绘制多个符号。总之,无论使用哪种方式,都要确保在标注时清晰、准确,让阅读者能够清楚理解你的意图。下面小编还总结了部分其他特色符号的扩展资料,希望能够对你在CAD绘图时能有所帮助。

以上方法均可实现在CAD中输入直径符号,大家可以根据个人习惯和喜好选择合适的方法。
标签:
175
2018网络流行梗有哪些,2018网络流行梗大盘点 [海峡网] 2018年即将过去,那么在这一年又创造出了哪些网络流行梗了,真香、skr、来了老弟……回顾2018,通过“沙雕”网友的火眼金睛,...
150
荣耀8青春版高清大图来了,逼近荣耀8的品质,你看看值不值 荣耀8青春版今日发布了,除了主打颜值担当以外,还有这三个主打卖点,“12层光学镜面”“ 10级美肤拍照” “4GB内存”...
141
燃烧1:燃烧的条件 考点1:燃烧的条件 大家好!今天我要和大家聊聊一个非常“火热”的话题——燃烧的条件。我们都知道,燃烧这玩意儿可真是神奇,它能让我们的家园温暖如春,也能...
98
全国唯一用“方位命名”的县:“南部县” 南部县位于四川省东北部,川中盆地北缘,嘉陵江中游,古时因地处阆水之南而得名,是全国唯一一个用方位命名的县。 南部县幅员面积2...
194
免费游梵净山的机会来了 铜仁A级景区向浙江省免门票 2018-11-16 17:23 | 浙江新闻客户端 | 记者 胡昊 今年7月,梵净山在巴林麦纳麦举行的世界遗产大会上获准列入世界自然遗产名录,成为...
78
紧身牛仔裤,真的很显身材,你们觉得呢? 在时尚的舞台上,紧身牛仔裤以其独特的魅力,成为无数女性衣橱中的必备单品。它不仅是一种服饰,更是一种态度的表达,一种自信的展现...
72
二战时,德国援助中国的真相 其实在二战时期有很多不可思议的事情,而德国也发生过一件事,虽然这其中有很多的蹊跷,但是确实,德国在二战时期援助过中国,而这其中到底发生了...
96
53年2分纸币,收藏价值几何? 53年2分纸币收藏价值? 这种2分纸币很多朋友都不陌生,发行年号在下面是1953年,设计上面非常简单,正面是一个飞机的图案,背面是国徽,还有币值中国...
104
【知识的力量】探索读书的七大好处:如何通过阅读丰富你的人生 在信息爆炸的时代,读书似乎成了一种对抗快节奏生活的静心方式。然而,读书的好处远不止于此。本文将探讨读书对...
117
“营口坠龙”事件:有图有真相,70年后龙骨现身,揭开真龙面纱 上个世纪,也是在1934年发生了一起震惊国内外的“坠龙事件”,就在辽宁的营口。据说当时不少当地百姓都目睹了“真...
98
“海清”不姓海也不叫清,原名曝光后,怪不得和黄海波关系好 说到演员这个名词,许多人都会想到那些国家级的宝藏演员。而许多国宝级演员中,海清更是被我们所熟知。她给我们带...
60
用毕身心血打造中国射电望远镜FAST的天眼之父—南仁东 南仁东,1945年出生,本科毕业于清华大学,硕士和博士毕业于中国科学院研究生院,后在日本国立天文台任客座教授,1982年,他...
140
王莽,真的是穿越者吗? 王莽,莫非他真的是个穿越者?在古老的中国历史长河中,他如同一个谜团,闪烁着神秘的光彩。他以臣子的身份,悄然夺走了汉家的天下,成为了历史上著名...
124
轻松掌握剪纸技巧!16讲剪纸教学视频带你从入门到精通 《剪纸教学视频》16讲,学习剪纸艺术,发现中华民族的智慧结晶和宝贵遗存。 剪纸是一种古老而又充满魅力的艺术形式,它是...
152
南京航空航天大学最好的三大专业,非常值得2024年高考生参考! 导读:南京航空航天大学最好的三大专业,非常值得2024年高考生参考! 南航的专业宝藏之谜 在美丽的南京航空航天大...
180
纪德:纯爱天花板的背后 在1947年的诺贝尔文学奖中,一位与众不同的法国作家引起了世界的关注。他不仅在形式上打破传统,其私生活也充满了争议。这位作家的名字叫安德烈·纪德。...
182
修涞贵、郭春生、李一奎榜上有名!2019中国最富1000人榜单出炉 界面联合亿安保险经纪重磅推出“2019中国最富1000人”榜单,这是界面连续第二年推出该榜单。1000位上榜富豪/富豪家族的...
116
为什么说唢呐是“乐界流氓”?它一出场,其他乐器都成伴奏 唢呐:恕我直言,在座的乐器都是伴奏 唢呐这个乐器,素来有 音色流氓 一称。 在电影《闪光少女》中,有一段民族乐和...
69
上海锦江之星酒店成立25周年,经济型酒店的未来在哪里 1996年,第一家锦江之星酒店在上海开业,至今已经过去了25年。25年的历史变迁,成为过去中国酒店业发展的历史画卷。锦江之...
168
90后顶流女星重新排名,杨紫仅排第三,第一名几乎没人反驳 能称得上是顶流的十位90后女明星,杨紫仅排第三,第一名几乎没人敢反驳,你最喜欢哪一位呢? 第十位迪丽热巴 她深邃的...